Cottbus
Attraktive Bürofläche in bester Lage am nördlichen Cottbuser Bahnhofsausgang zu vermieten!
"Attraktive Bürofläche in bester Lage am nördlichen Cottbuser Bahnhofsausgang zu vermieten!" - 5 Zimmer 90,97 m² Bürofläche in Cottbus zur Miete. Ausstattung: Außenstellplatz, etc.
Kaltmiete
901 €
Nebenkosten
319 €
Warmmiete
1220 €
Verfügbar ab
Nach Absprache!
Objektnummer
7913
Objektnummer
7913
Objektart
Bürofläche
Zimmer
5

Beschreibung

Direkt am Ausgang des nördlichen Bahnhofstunnels am Cottbuser Hauptbahnhof liegt das Gebäude der Güterzufuhrstraße 8 – mitten im neu gestalteten Bahnhofsumfeld, das einen modernen und einladenden Zugang zur Innenstadt bietet. Diese hervorragende Lage vereint optimale Erreichbarkeit, repräsentatives Arbeiten und unmittelbare Kundennähe auf ideale Weise.

Ausstattung

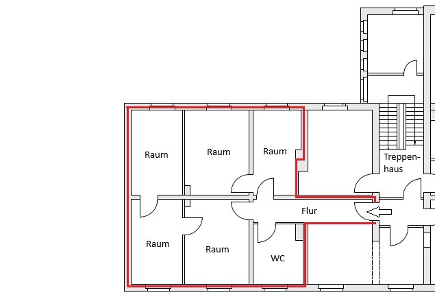
Die Büroeinheit verfügt über eine Gesamtfläche von ca. 90,97 m², die sich auf 4 bis 5 flexibel nutzbare Räume verteilt. Jeder Raum bietet ausreichend Platz für Büromöbel und Arbeitsplätze und kann individuell nach den Anforderungen Ihres Unternehmens gestaltet werden. Große Fensterflächen sorgen für helle, freundliche Räume und eine angenehme Arbeitsatmosphäre. Ein Raum kann als Teeküche genutzt werden; außerdem steht ein separates WC in dieser Einheit zur Verfügung. Auf dem Gelände befinden sich des Weiteren ausreichend Pkw-Stellplätze, die bei Bedarf für 45,00 € netto pro Stellplatz und Monat angemietet werden können. Öffentliche Verkehrsmittel sowie der Hauptbahnhof liegen in unmittelbarer Nähe – ideal für Mitarbeitende und Kundinnen und Kunden gleichermaßen. Mietkonditionen: -> Kaltmiete zzgl. Nebenkosten und gesetzlicher USt./MwSt., in den Nebenkosten ist eine Strompauschale enthalten! Diese Bürofläche bietet Ihnen die perfekte Kombination aus moderner Infrastruktur, zentraler Lage und angenehmem Arbeitsumfeld – ideal für Unternehmen, die Wert auf Qualität und gute Erreichbarkeit legen.

Energieausweis

Schnell & einfach

Vollständiges Exposé anfordern

Wir sind für Sie da

Johanna Krähe
Nicole Rauer
Peggy Schnell
Details

Das könnte Sie auch interessieren

Cottbus
Wohnung

Wohnen im Herzen von Cottbus: 2,5-Zimmer-Wohnung mit EBK, Balkon, Fahrstuhl, Stellplatz u.v.m. zu mieten!

2 Zimmer 62 m² Etagenwohnung in Cottbus zur Miete. Ausstattung: Einbauküche, Außenstellplatz, Dusche, etc.
Cottbus
Wohnung

Exklusive Eigentumswohnung mit großzügiger Terrasse zu verkaufen!

4 Zimmer 105,85 m² Erdgeschosswohnung in Cottbus zum Kauf. Ausstattung: Barrierefrei, Terrasse, Neubau, etc.
Cottbus
Wohnung

Charmante 4-Zimmer-Eigentumswohnung mit sonnigem Balkon zu verkaufen

4 Zimmer 109,18 m² Etagenwohnung in Cottbus zum Kauf. Ausstattung: Neubau, etc.
Cottbus
Renditeobjekt

Wohn- und Geschäftshaus im Cottbuser Zentrum zu verkaufen

631 m² Wohn- und Geschäftshaus in Cottbus zum Kauf. Ausstattung: Denkmalgeschützt, Altbau, etc.
Cottbus
Sonstige

Gewerbeeinheit mit Büro- und vielseitiger Lagerfläche zu vermieten

Sonstige in Cottbus zur Miete.
Cottbus
Büro/Praxis

Großes Bürogebäude auf dem LSP: Vielfältige Möglichkeiten für Ihr Unternehmen

Bürohaus in Cottbus zur Miete.

Hinterlassen Sie uns Ihre Kontaktanfrage

Wir bearbeiten Ihr Anliegen zeitnah und melden uns anschließend bei Ihnen, um Ihnen weiterzuhelfen.

Wir bearbeiten Ihr Anliegen zeitnah und melden uns anschließend bei Ihnen, um Ihnen weiterzuhelfen.